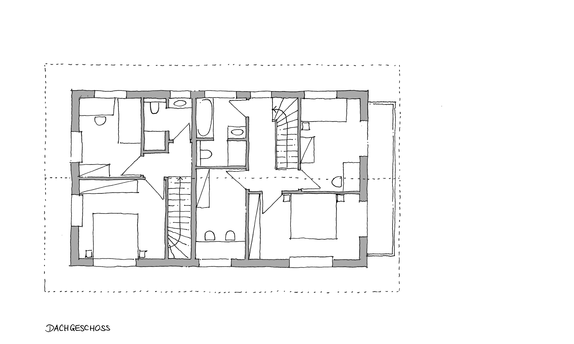
Baujahr: 2023
Nutzung: Wohnnutzung
Ort: Pfraundorf (Raubling)
Bauweise: Holzständerbau, Fertighaus
Leistungsphase 1-4





ELISABETH REISCHL Architektur
Baujahr: 2023
Nutzung: Wohnnutzung
Ort: Pfraundorf (Raubling)
Bauweise: Holzständerbau, Fertighaus
Leistungsphase 1-4




