Ausführungszeitraum: ab 01.09.25
Nutzung: Wohnen
Ort: 10405 Berlin, Prenzlauer Berg
Leistungsphase: 1-3



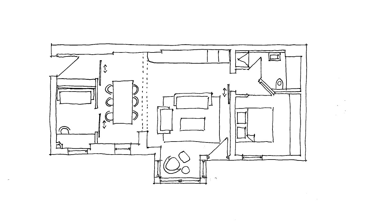
Räumliche Neuordnung – Von der kompakten Altbauwohnung zum großzügigen 3-Zimmer-Grundriss
Die geplante Renovierung dieser Berliner Altbauwohnung verfolgt das Ziel, die bestehende 2-Zimmer-Wohnung in eine funktionale und räumlich großzügig wirkende 3-Zimmer-Wohnung zu transformieren, ohne den historischen Charakter zu verlieren. Ausgangspunkt sind die hervorragenden architektonischen Qualitäten des Bestands: hohe Decken, originale Sprossenfenster mit Blick in den begrünten Innenhof sowie eine kompakte, gut organisierte Anbindung von Schlafzimmer und Bad über einen effizienten Stichflur an den großen Wohnraum.
Die Umstrukturierung konzentriert sich primär auf den Eingangsbereich sowie die Küche, wodurch mit minimalen baulichen Eingriffen eine deutlich optimierte Raumorganisation entsteht. Das bestehende WC mit Hauswirtschaftsraum, das von der Garderobe abzweigt, wird zu einem kleinen Arbeitszimmer mit Schlafsofa umgebaut. Die Garderobe selbst wird verschlankt und übernimmt die Funktion einer klar definierten Pufferzone zwischen Eingang und Wohnbereich.
Entscheidender Eingriff ist die Verlagerung der Küche in die tiefere, bislang schlecht belichtete Zone der Wohnung. Dadurch rückt der Wohn- und Essbereich näher an die Fensterfront und den lichtdurchfluteten Erker, was die Tageslichtnutzung deutlich verbessert. Ein großzügiger Esstisch kann nun zentral vor dem Fenster platziert werden, akzentuiert von einer inszenierten Rückwand mit zwei raumhohen Loft-Schiebetüren aus Stahl und satiniertem Glas. Diese Elemente schaffen nicht nur einen funktionalen Übergang, sondern setzen auch einen markanten gestalterischen Akzent im Raum.
Der neue Grundriss nutzt bestehende Tragstrukturen, um eine subtile Zonierung des großen Wohnraums zu schaffen. Das Esszimmer erhält durch eine raumgebende Stütze und einen klar erkennbaren Unterzug eine eigene räumliche Qualität, ohne dabei abgetrennt zu wirken. Ebenso entwickelt das Wohnzimmer mit seiner Leseecke im Erker eine intime, eigenständige Atmosphäre.
Um den Stichflur optisch zu beruhigen, wird dieser mit einer zusätzlichen Schiebetür abgeschlossen. Neue Oberlichter über den Zimmertüren zu Bad und Schlafzimmer lassen natürliches Licht bis in das innenliegende Badezimmer fluten, was die Wohnqualität zusätzlich steigert.
Insgesamt stellt die Renovierung eine ökonomische Minimallösung dar, die mit dem gezielten Verschieben von lediglich zwei Wänden und einer geschickten Neuorganisation des Wohnraums eine vollwertige 3-Zimmer-Wohnung mit vier Schlafplätzen schafft. Der Entwurf setzt dabei bewusst auf die Inszenierung der historischen Fensterfront und eine feine Teiluntergliederung des Hauptraums in logisch strukturierte, aber visuell miteinander verbundene Teilbereiche, wodurch ein harmonisches und großzügiges Wohngefühl entsteht.
