Ausführungszeitraum: ab Herbst 2025
Nutzung: Einfamilienhaus für eine fünfköpfige Familie
Ort: 83132 Pittenhart
Leistungsphase: 1-4






Einfamilienhaus in Holzmassiv- und Holzskelettbauweise in sanfter Hanglage
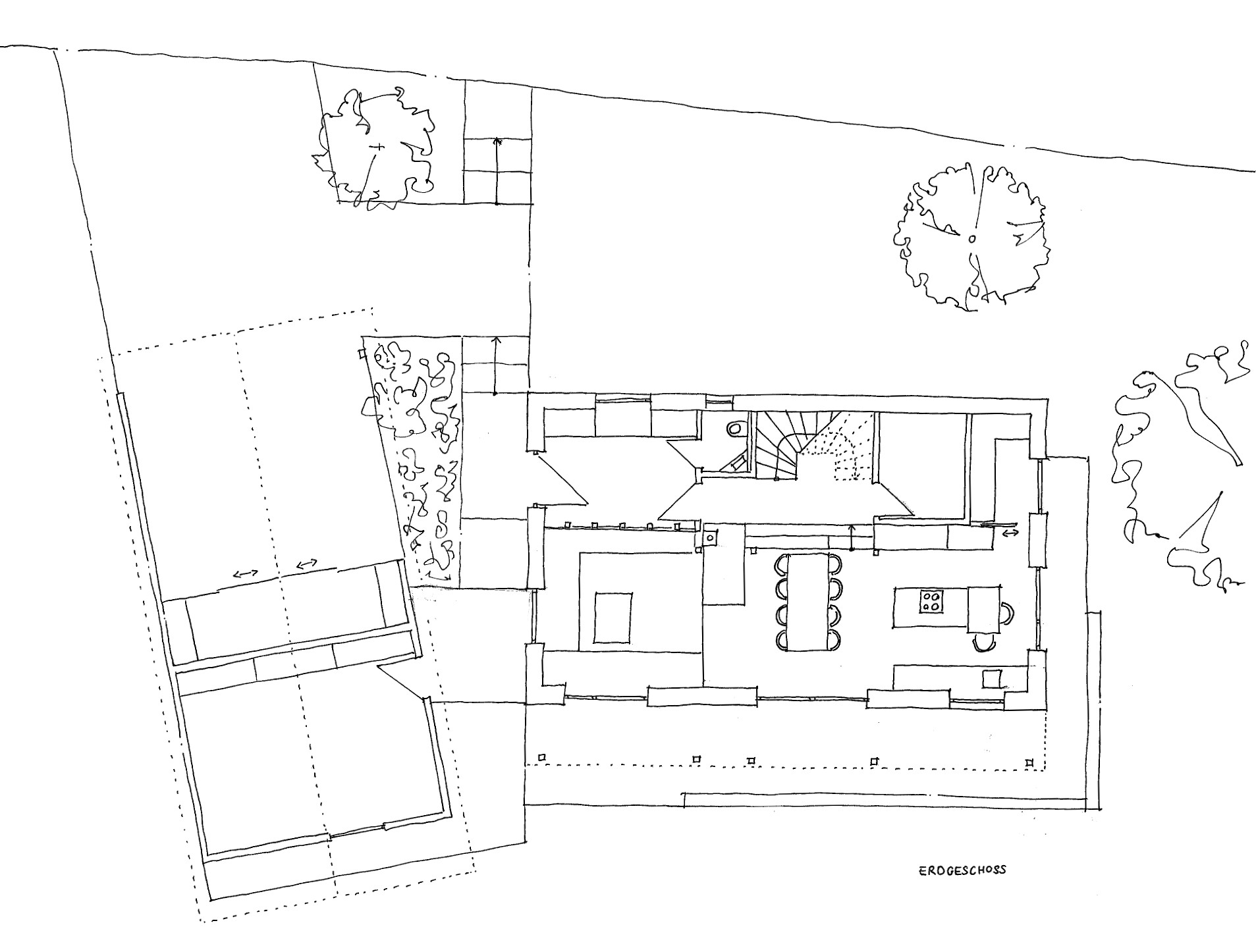
Der Neubau eines Einfamilienhauses in Holzbauweise entsteht in leichter Hanglage am Rand einer gewachsenen Ortsstruktur. Grundlage der Planung war eine Bauvoranfrage, da das Gebäude bewusst von den im Bebauungsplan definierten Baufenstern abweicht. Diese Befreiung wurde im Rahmen einer intensiven städtebaulichen Prüfung genehmigt. Ziel war es, das Haus näher an die Straße zu rücken, um die Raumkante am Ortseingang zu fassen und die städtebauliche Geschlossenheit zu stärken. Gleichzeitig verschiebt sich das Gebäude weiter hangaufwärts nach Norden – dadurch verbessern sich sowohl Aussicht als auch Grundstücksnutzung: Der nordseitige, topografisch schwierig nutzbare Vorgarten wird reduziert, während der nach Süden orientierte Garten deutlich an Qualität und Fläche gewinnt.
Die neue Setzung des Baukörpers ermöglicht eine spannungsreiche Beziehung zwischen dem Wohnhaus und dem gedreht angeordnetem Nebengebäude. Dazwischen spannt sich ein hofartiger Außenraum auf, der durch zwei seitliche Raumkanten gefasst ist und eine geschützte, halbprivate Zone formuliert. Gleichzeitig wird durch die veränderte Höhenlage der Höhensprung zwischen Straße und Haus reduziert – dies minimiert nicht nur gestalterisch den Sockelanteil, sondern verbessert auch die bautechnische Situation hinsichtlich Hangwasser und Entwässerung.
Das Gebäude selbst ist in einer Kombination aus Holzmassiv- und Holzskelettbauweise ausgeführt. Die Konstruktion verbindet die thermischen und atmosphärischen Vorteile massiver Holzelemente mit der Flexibilität und Offenheit tragender Rahmenstrukturen.
Aufgrund der Hanglage ist das Erdgeschoss funktional in zwei Niveaus gegliedert: Der Eingang mit Garderobe, Gäste-WC, Technik und Treppenhaus liegt höher und erlaubt einen straßennahen Zugang. Über wenige Stufen gelangt man in den offen gestalteten Koch-, Ess- und Wohnbereich mit großzügiger Südverglasung und direkter Verbindung zum Garten. Die sichtbare Holzbalkendecke differenziert die einzelnen Funktionsbereiche subtil, indem die Spannrichtungen der Deckenbalken je nach Zone variieren – ein einfaches, aber räumlich wirksames Mittel zur Zonierung.
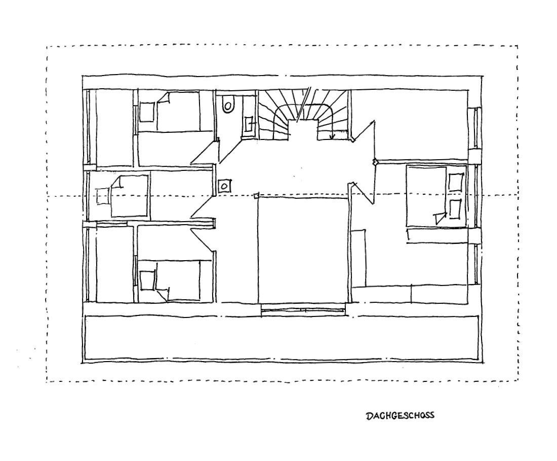
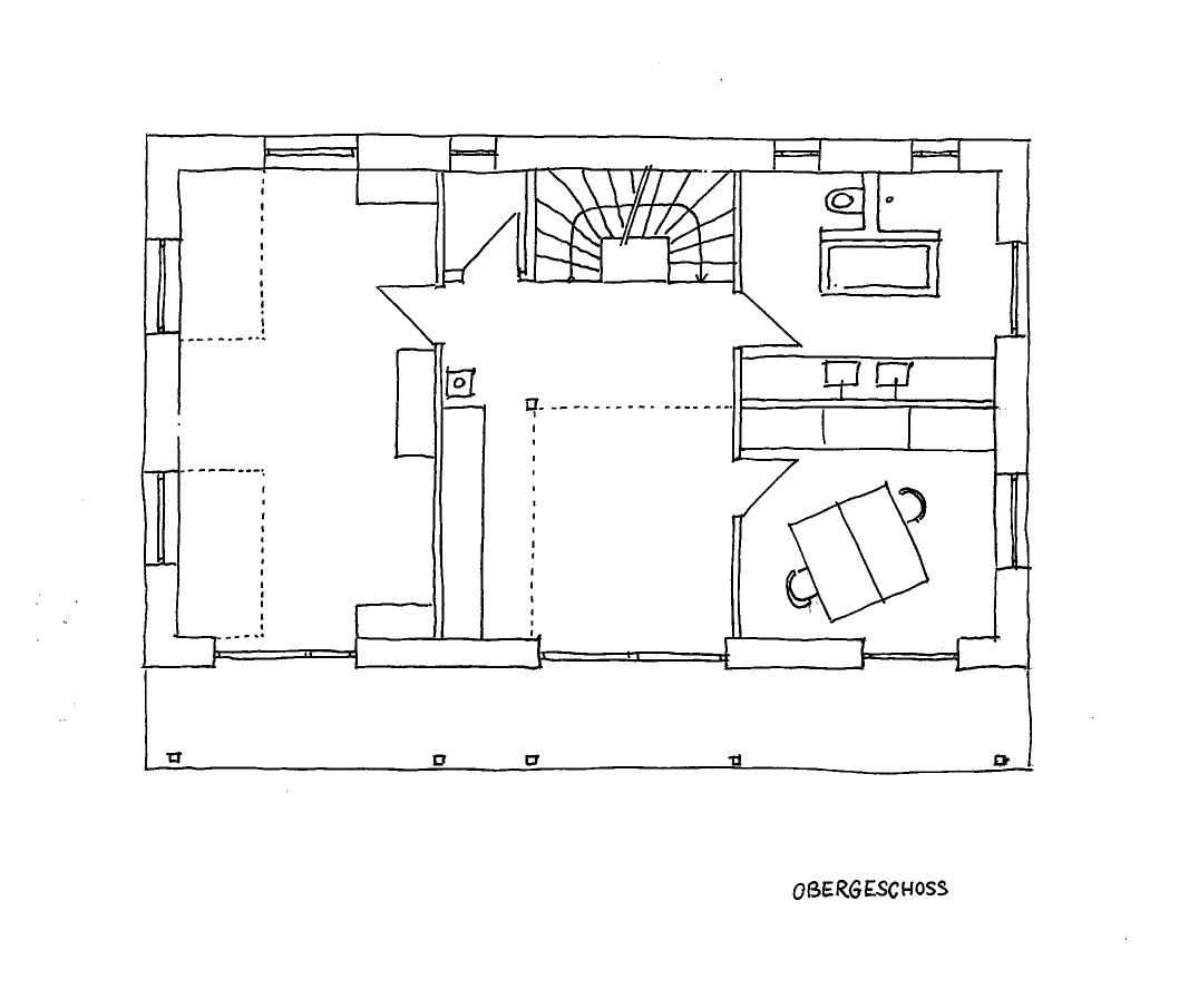
Das Obergeschoss nimmt kommunale Wohnnutzungen auf, darunter ein Mehrzweckraum sowie ein großzügiges Kinderspielzimmer. Auch hier wird das statisch-konstruktive Prinzip der quer und längs gespannten Holzbalken zur Gliederung der Räume genutzt. Über dem Spielzimmer, im ausgebauten Dachgeschoss, befinden sich die privaten Rückzugsräume der Kinder in Form individueller Schlafkojen. Diese sind wie kleine Baumhäuser ausgebildet und stehen in visuellem und räumlichem Bezug zum darunterliegenden Gemeinschaftsraum. Luken und Loftnetze schaffen eine zusätzliche Spielebene, die sowohl funktional als auch atmosphärisch eine kindgerechte Architektur ausformt.
Das Haus verankert sich durch seine Holzarchitektur und maßstäbliche Setzung selbstverständlich in der Landschaft. Die feine Differenzierung der Volumen, Ebenen und Räume reagiert sensibel auf die topografischen und städtebaulichen Rahmenbedingungen und formuliert eine zeitgemäße, identitätsstiftende Antwort auf das Bauen im ländlichen Kontext.
