Ausführungszeitraum: ab Juli 2025
Nutzung: Einfamilienhaus
Ort: 83115 Neubeuern
Leistungsphase: 1-4




Sanierung und Aufstockung eines Einfamilienhauses – Weiterbauen im ländlichen Kontext
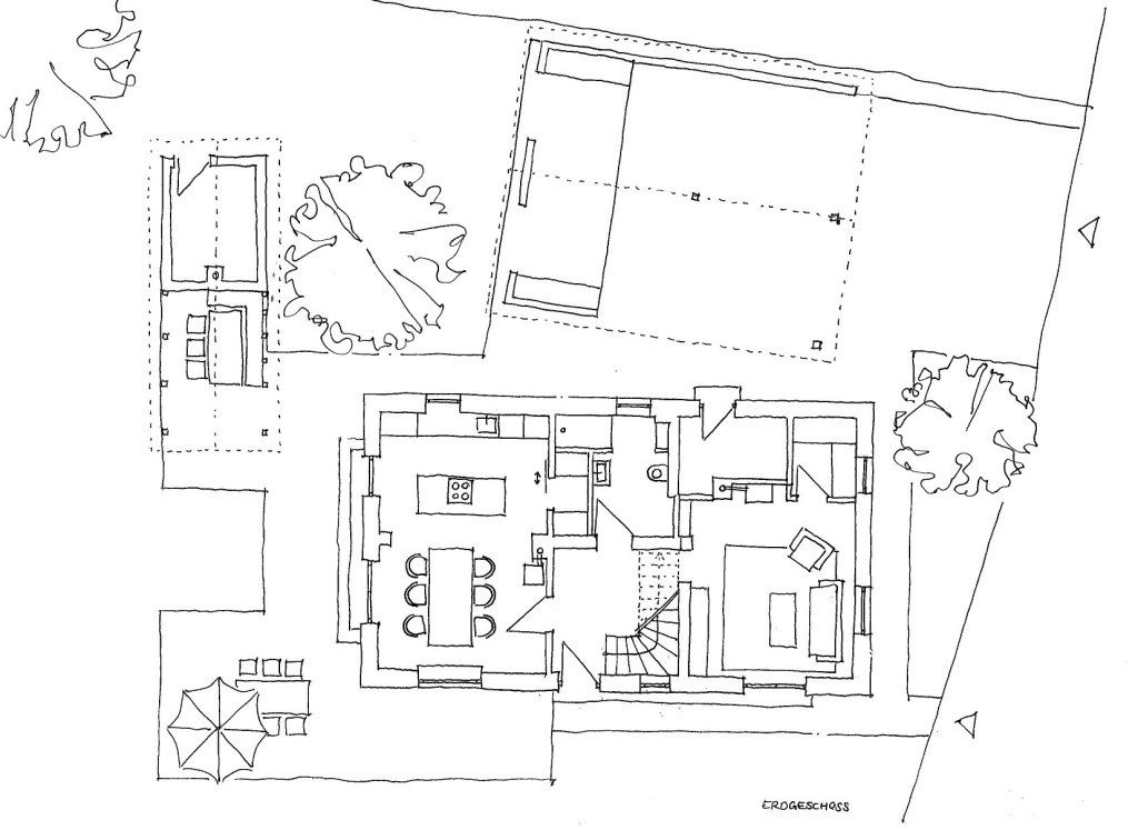
Das Einfamilienhaus aus dem Jahr 1913, ursprünglich als eingeschossiges Wohngebäude mit unausgebautem Dachboden errichtet, wurde in den Nachkriegsjahren um eine einfache Dachgeschosswohnung ergänzt. Diese Ergänzung zeichnete sich durch niedrige Raumhöhen und eine rudimentäre Ausstattung ohne Dusche aus. Die heutigen Bauherren traten mit dem Wunsch an mich heran, das Gebäude baulich und funktional an die Anforderungen einer vierköpfigen Familie anzupassen – mit dem erklärten Ziel, die Erdgeschossstruktur weitgehend zu erhalten und zugleich zusätzlichen, zeitgemäßen Wohnraum zu schaffen.
Das architektonische Konzept setzt auf eine behutsame Transformation des Bestands. Im Erdgeschoss werden kleinteilige Raumstrukturen zugunsten großzügiger, offener Bereiche neu geordnet. Aus mehreren ehemaligen Einzelräumen entstand eine offene Wohnküche mit Kücheninsel und großem Esstisch als zentralem Ort des Familienlebens. Der ursprüngliche Eingangsbereich und die historische Treppe bleiben erhalten und verankern das Haus räumlich und atmosphärisch im Bestand. An der Ostseite wird das ehemals durchgängig genutzte Schlafzimmer gemeinsam mit einem Durchgangszimmer zu einem eigenständigen Wohnzimmer zusammengeführt – als ruhiger Rückzugsort abseits der zentralen Wohnzone.
Dem Wunsch der Bauleute entsprechend, wurde das großzügige Bestandsbad im Erdgeschoss beibehalten und lediglich durch eine angrenzende Speisekammer kompakt ergänzt. Seine Lage ermöglicht es, direkt nach körperlicher Arbeit über den Eingangsbereich das Badezimmer aufzusuchen – ein funktionales Detail mit hoher Alltagsrelevanz, das aus der ländlichen Lebensrealität heraus gedacht wurde.
Das gesamte Obergeschoss sowie der Dachraum werden rückgebaut und in Holzmassivbauweise neu errichtet. Die neue Konstruktion sitzt sichtbar auf dem historischen Ziegelmauerwerk auf und überragt dieses um ca. 20 cm – ein bewusster architektonischer Verweis auf traditionelle Bauformen wie das Fachwerk, bei denen Holz konstruktiv wie gestalterisch über dem massiven Sockel steht. Die Differenzierung der Materialien – unten Ziegel, oben Holz – formuliert eine klare Ablesbarkeit des Weiterbauens und setzt die Geschichte des Hauses sichtbar fort.
Im Inneren bleibt das Holz in seiner Materialität spürbar: Auf eine Verkleidung durch Gipskarton wurde bewusst verzichtet. Die sichtbare Massivholzoberfläche bestimmt das Raumklima und spart durch den Entfall von Spachtel-, Schleif- und Malerarbeiten Ressourcen in der Bauausführung. Auf kompakter Fläche wurden hier zwei Kinderzimmer, ein Elternschlafzimmer, ein Bad sowie ein kleines Arbeitszimmer organisiert. Der offene Dachraum bietet zusätzlichen Stauraum – ein praktischer Aspekt, der in der Gesamtplanung nicht vernachlässigt wurde.
Das Projekt steht exemplarisch für einen verantwortungsvollen Umgang mit dem Bestand im ländlichen Raum. Der minimalistische, materialgerechte Entwurf integriert sich durch seine Zurückhaltung in das dörfliche Umfeld, ohne dabei gestalterische Kompromisse einzugehen. Die sichtbare Differenzierung von Alt und Neu wird nicht kaschiert, sondern zur Stärke der Architektur gemacht – als Ausdruck eines Weiterbauens in Respekt vor dem Gewachsenen.
